Smart Imobiliare inchiriaza spatiu comercial situat in zona Garii Turnisor, intr-un cartier de blocuri noi.
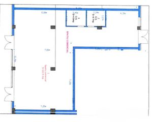
Spatiul dispune de o suprafata de 130 mp si este compus din spatiu comercial de 122mp si 2 bai.
Dispune de 2 intrari in partea din fata si o intrare in partea din spate a blocului, 2 locuri de parcare supraterane, plus un loc de parcare subteran.
Spatiul poate fi amenajat in functie de cerinte.
Pentru detalii suplimentare, precizati ca ati vazut anuntul cu ID: P16682

ID: P16682 Sibiu, Turnisor
9
1.300€
Spatiu comercial 130mp zona Turnisor
Camere
1
Suprafata utila
130 mp
Front stradal
13 m
Parcari
2
An constructie
2023
Caracteristici
- ID:P16682
- Nr. camere:1
- S. utila:130.00 mp
- S. construita:150.00 mp
- S. vitrina:7.00 m
- Front stradal:13.00 m
- Nr. bai:2
- Nr. parcari:2
- Nr. garaje:1
- An constructie:2023
- Structura rezistenta:Caramida
- Tip imobil:Bloc
- Regim inaltime:P+4
Descriere
Specificatii
Curent
Apa
Canalizare
Gaz
Centrala proprie
Localizare
Esti interesat de aceasta proprietate ?
Proprietati similare