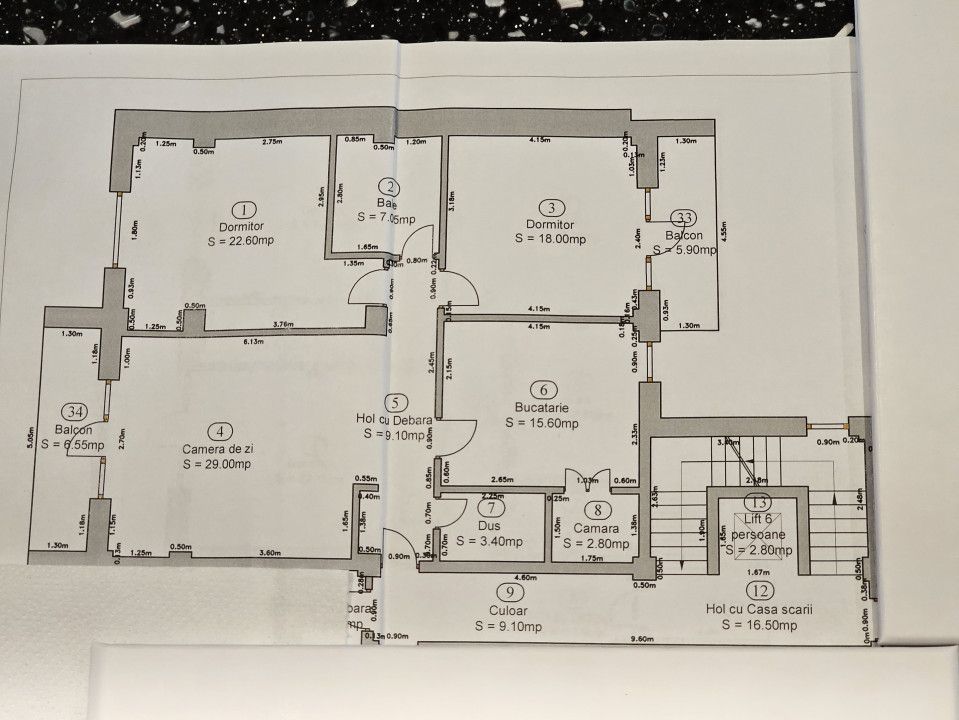
Smart Imobiliare va propune spre inchiriere un spatiu de birouri format din 3 camere,hol,2 bai,bucatarie,spatiu depozitare, 2 balcoane.
Apartamentul se afla la etajul 3 intr-un bloc nou si frumos amenajat cu 4 etaje situat pe Calea Dumbravii.
Zona in care se afla este foarte buna avand in imediata apropiere magazine,mijloc de transport in comun.
Spatiul detine un loc de parcare privat in curtea blocului.Pentru mai multe detalii precizati ca ati vazut oferta cu id P15870.

ID: P15870 Sibiu, Calea Dumbravii
7
1.200€
Spatiu Birouri 3 camere Calea Dumbravii bloc nou
Camere
3
Suprafata utila
107 mp
Etaj
Etaj 3
Parcari
1
Caracteristici
- ID:P15870
- Nr. camere:3
- S. utila:107.00 mp
- Comp.:Compartimentat
- Clasificare:A
- Etaj:Etaj 3
- Nr. bai:2
- Terase:2
- Nr. parcari:1
- Structura rezistenta:Caramida
- Tip imobil:Bloc
- Regim inaltime:P+4
Descriere
Specificatii
Localizare
Esti interesat de aceasta proprietate ?
Proprietati similare