Smart Imobiliare vinde casa tip duplex situat in Selimbar, in zona strazii Trifoiului.
Terenul are o suprafata de 200mp, iar terenul ramas liber de aproximativ 110mp.
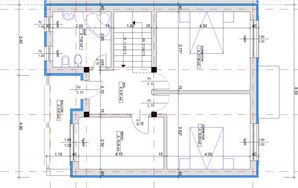
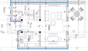
Casa va dispune de o suprafata utila de 115mp, plus un balcon de 6mp si este compusa astfelȘ
- parter: living spatios de 34mp, cu iesire pe terasa din spate, bucatarie separata, hol, baie si camera tehnica
- etaj: baie, hol cu iesire pe balcon, baie de 7,5mp si 3 dormitoare decomandate.
Casa dispune si de pod pentru depozitare si se preda cu centrala proprie cu incalzire in pardoseala, tamplarie PVC, izolatie exterioara, curte amenajata.
Constructia va incepe la finalul anului, iar termenul de predare este estimat pentru luna mai 2027.
Pentru detalii suplimentare, precizati ca ati vazut anuntul cu ID: P16577

ID: P16577 Sibiu, Selimbar
10
225.000€
Duplex zona Trifoiului Selimbar
Camere
4
Suprafata utila
115 mp
Bai
2
An constructie
2027
Caracteristici
- ID:P16577
- Nr. camere:4
- Nr. dormitoare:3
- S. utila:115.00 mp
- S. construita:140.00 mp
- S. teren:200.00 mp
- Nr. bucatarii:1
- Nr. bai:2
- Nr. balcoane:1
- Nr. parcari:2
- An constructie:2027
- Structura rezistenta:Caramida
- Regim inaltime:P+1
Descriere
Specificatii
Curent
Apa
Canalizare
Gaz
Centrala proprie
Incalzire pardoseala
Localizare
Esti interesat de aceasta proprietate ?
Proprietati similare