Smart imobiliare vinde casa individuala situata in Tocile, intr-o zona linistita, ce ofera un peisaj frumos si o atmosfera relaxanta.
Casa dispune de un teren generos de 1100mp si o suprafata totala de 270mp, din care, 200mp utili casa, 30mp garajul si 40mp terasa si balconul.
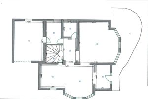
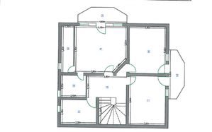
Imobilul este construit pe 2 niveluri, parter si mansarda si dispune de pod pentru depozitare.
Parterul dispune de o suprafata utila de 110mp, plus un garaj de 28mp si dispune de living, bucatarie open space cu zona de luat masa, hol, baie, spatiu depozitare si camera tehnica. Din living se face accesul teresa, iar garajul dispune de intrare direct in casa.
Mansarda dispune de o suprafata utila de 92mp, plus 2 balcoane de 6.5mp fiecare si este compusa din 3 dormitoare, fiecare cu iesire pe balcon, hol, baie, iar dormitorul matrimonial dispune de baie proprie si dressing.
Casa a fost construita in anul 2012, cu atentie la detalii, dispune de centrala proprie pe peleti cu boiler 200l, cu incalzire in pardoseala la parter si calorifere la etaj, mobilier de calitate, facut la comanda, imbinand astfel confortul si utilitatea necesara.
Pentru detalii suplimentare si stabilirea unei vizionari, precizati ca ati vazut anuntul cu ID: P16853

ID: P16853 Sibiu, Periferie
8
299.000€
Casa individuala 230mp cu teren 1100mp Tocile
Camere
4
Suprafata utila
230 mp
Bai
3
Front stradal
20 m
An constructie
2012
Caracteristici
- ID:P16853
- Nr. camere:4
- Nr. dormitoare:3
- S. utila:230.00 mp
- S. terase:32.00 mp
- S. construita:270.00 mp
- S. teren:1100.00 mp
- Nr. bucatarii:1
- Nr. bai:3
- Nr. balcoane:1
- Nr. garaje:1
- Front stradal:20.00 m
- Nr. fronturi:1
- An constructie:2012
- Structura rezistenta:Caramida
Descriere
Specificatii
Curent
Apa
Canalizare
Centrala proprie
Incalzire pardoseala
Localizare
Esti interesat de aceasta proprietate ?
Proprietati similare