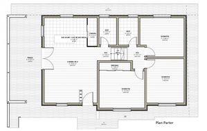
Smart Imobiliare va prezinta o casa moderna si economica, de vanzare in Iris, zona Fermei Steluta. Suprafata utila a imobilului este se 100 mp si este compartimentata pe un singur nivel peste un subsol, care deserveste pentru camera tehnica. Parterul cuprinde un living cu bucatarie tip open-space, 3 dormitoare, 2 bai si terasa cu acces din living, cu o suprafata de 25 mp. Suprafata totala a terenului este de 706 mp, unde se poate amenaja o piscina exterioara, spatiu de joaca pentru copii. Exista posibilitatea de a parca 2 automobile, in partea din fata a casei, plus accesul liber pe strada. Incalzirea se realizeaza prin pardoseala, avand ca sursa curentul electric. Comfortul termic este sporit de izolatia inetrioara cu vata minerala de 15 cm si exterioara cu polistiren de 10 cm. Prezinta un singur front stradal cu o lungime de 31 m. Structura casei este pe lemn. Se vinde complet mobilata si partial utilata.
Pentru detalii si programarea unei vizionari va rog sa ne contactati telefonic si sa mentionati ID-ul: P14156

ID: P14156 Cluj-Napoca, Iris
5
295.000€
296.000€
Vila de vanzare, 706 mp teren, zona Fermei Steluta
Camere
4
Suprafata utila
100 mp
Bai
2
Front stradal
31 m
An constructie
2022
Caracteristici
- ID:P14156
- Nr. camere:4
- Nr. dormitoare:3
- S. utila:100.00 mp
- S. terase:25.00 mp
- S. construita:101.00 mp
- S. teren:706.00 mp
- Nr. bucatarii:1
- Nr. bai:2
- Nr. parcari:2
- Front stradal:31.00 m
- Nr. fronturi:1
- An constructie:2022
- Structura rezistenta:Lemn
- Regim inaltime:S+P
- Orientare:Est
Descriere
Specificatii
Curent
Apa
Canalizare
Gaz
CATV
Fibra optica
Centrala imobil
Incalzire pardoseala
Izolatie Exterior
Izolatie Interior
Vopsea lavabila
Faianta
Parchet
Gresie
Ferestre PVC
Usa interior Lemn
Spatiu depozitare
WC Serviciu
Bucatarie Mobilata
Bucatarie Utilata
Apometre
Contor gaz
Complet mobilat
Curte
Gradina
Localizare
Esti interesat de aceasta proprietate ?
Proprietati similare