Smart Imobiliare vinde duplex situat in Sura Mica, intr-o zona retrasa si linistita.
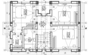
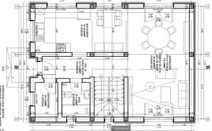
Imobilul va dispune de o suprafata utila de 117mp, dispusi pe parter si mansarda.
Terenul aferent este de 300mp din care liberi aproximativ 230mp.
Parterul este compus din living, bucatarie separata, hol, baie, spatiu depozitare, iar mansarda este compusa din 3 dormitoare decomandate, unul cu dressing, hol, baie si balcon.
Predarea se face la stadiul de ALB la interior, cu centrala proprie, utilitatiile conectate. Exteriorul se preda la stadiul de CHEIE, cu acoperis din tigla ceramica,, curtea delimitata, izolatie exterioara, geamuri din tamplarie PVC cu finisaje textura de lemn.
Predarea se va face la sfarsitul anului 2025.
Pretul nu include cota de TVA.
Pentru detalii suplimentare, precizati ca ati vazut anuntul cu ID: P16180

ID: P16180 Sura Mica, Central
7
157.000€ + TVA
Duplex 117mp teren 300 Sura Mica
Camere
4
Suprafata utila
117 mp
Bai
2
Front stradal
18 m
An constructie
2025
Caracteristici
- ID:P16180
- Nr. camere:4
- Nr. dormitoare:3
- S. utila:117.00 mp
- S. construita:140.00 mp
- S. teren:300.00 mp
- Nr. bucatarii:1
- Nr. bai:2
- Nr. balcoane:1
- Nr. parcari:2
- Front stradal:18.00 m
- Nr. fronturi:1
- An constructie:2025
- Structura rezistenta:Caramida
- Regim inaltime:P+M
Descriere
Specificatii
Curent
Apa
Canalizare
Gaz
Centrala proprie
Localizare
Esti interesat de aceasta proprietate ?
Proprietati similare