Smart Imobiliare vinde casa individuala situata la intrarea in Poplaca, intr-o zona noua de case, ce ofera o priveliste frumoasa asupra muntilor si a orasului Sibiu.
Suprafata terenului este de 450mp, din care liberi aproximativ 350mp si o suprafata utila a imobilului de 125 mp, plus carport de 17mp cu intrare direct in casa, totalizand 142mp.
Casa dispune de o suprafata utila de 125mp plus o terasa de 10mp.
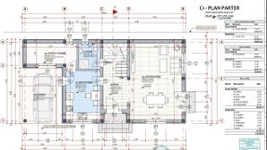
Parterul dispune de living spatios cu iesire in curtea din spate, bucatarie separata cu camera tehnica si iesire in curte, hol, baie si spatiu depozitare sub scari.
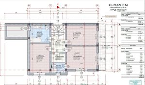
Etajul dispune de hol, dressing pe hol, baie si 3 dormitoare spatioase, 2 din ele cu iesire pe balcon, iar unul cu baie proprie.
Utilitatiile existente la casa sunt curentul, apa si canalul. Gazul va ajunge in zona, momentan imobilul se preda cu pompa de caldura si incalzire in pardoseala.
Predarea casei se face la stadiul de CHEIE la exterior, la interior la stadiul de ALB cu pompe de caldura si incalzire in pardoseala, geamuri din tamplarie PVC, usa la intrare, curte nivelata, poarta, gard, izolatie exterioara.
Casele se predau incepand cu luna septembrie 2025.
Pentru detalii suplimentare, precizati ca ati vazut anuntul cu ID: P16450

ID: P16450 Poplaca, Central
8
210.000€
Casa individuala 125mp teren 450mp in Poplaca
Camere
4
Suprafata utila
125 mp
Bai
3
Front stradal
14 m
An constructie
2025
Caracteristici
- ID:P16450
- Nr. camere:4
- Nr. dormitoare:3
- S. utila:125.00 mp
- S. terase:10.00 mp
- S. construita:186.00 mp
- S. teren:450.00 mp
- Nr. bucatarii:1
- Nr. bai:3
- Nr. balcoane:1
- Nr. garaje:1
- Front stradal:14.00 m
- Nr. fronturi:1
- An constructie:2025
- Structura rezistenta:Caramida
- Regim inaltime:P+1
Descriere
Specificatii
Curent
Apa
Canalizare
Incalzire pardoseala
Vopsea lavabila
Ferestre PVC
Usa intrare Metal
Localizare
Esti interesat de aceasta proprietate ?
Proprietati similare