Smart Imobiliare vinde casa individuala pe 1 nivel, situata in Cristian, intr-un cartier nou de case.
Terenul aferent este de 500mp, din care liberi aproximativ. Imobilul dispune de o suprafata utila de 103mp, plus pivnita de 19mp, totalizand 121mp.
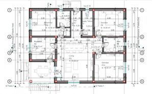
Casa este compusa din living spatios de 30mp, bucatarie separata, baie si spatiu de depozitare, 3 dormitoare din care unul cu baie proprie.
Predarea casei se face la stadiul de ALB la interior, cu centrala, proprie cu incalzire in pardoseala, geamuri tripan Salamander, usa la intrare, utilitati bransate.
Exteriorul se preda la stadiul de cheie, cu izolatie exterioara de 10, curte nivelata, gard, poarta acces.
Pentru detalii suplimentare si stabilirea unei vizionari, precizati ca ati vazut anuntul cu ID: P16623.

ID: P16623 Cristian, Central
7
215.000€
Casa individuala 1 nivel, 120mp cu teren 500mp in Cristian
Camere
4
Suprafata utila
103 mp
Bai
2
Front stradal
13 m
An constructie
2025
Caracteristici
- ID:P16623
- Nr. camere:4
- Nr. dormitoare:3
- S. utila:103.00 mp
- S. construita:135.00 mp
- S. teren:500.00 mp
- Nr. bucatarii:1
- Nr. bai:2
- Nr. parcari:2
- Front stradal:13.00 m
- An constructie:2025
- Structura rezistenta:Caramida
- Regim inaltime:P+1
Descriere
Specificatii
Curent
Apa
Canalizare
Gaz
Centrala proprie
Incalzire pardoseala
Localizare
Esti interesat de aceasta proprietate ?
Proprietati similare