Vă prezentăm o proprietate elegantă și bine compartimentată, amplasată într-o zonă liniștită, ideală pentru o familie care își dorește confort și funcționalitate într-o locuință modernă pe un singur nivel.
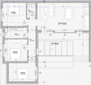
Casa este organizată în mod practic, cu o zonă de zi generoasă în format open-space, ce integrează livingul și bucătăria într-un spațiu luminos și aerisit, cu acces direct către o terasă exterioară perfectă pentru momente de relaxare sau socializare în aer liber. Zona de noapte include trei dormitoare complet separate, fiecare cu ferestre ample ce oferă lumină naturală pe tot parcursul zilei. Dormitorul matrimonial este situat într-o zonă ușor retrasă, oferind intimitate și confort, în timp ce celelalte două camere pot fi adaptate pentru copii, birou sau oaspeți. Locuința este completată de două băi – una principală, spațioasă, și un grup sanitar de serviciu situat convenabil lângă zona de zi. Holul central asigură o circulație fluentă între încăperi, iar spațiile de depozitare sunt discret integrate pentru eficiență și organizare. Pe lângă corpul principal, proprietatea beneficiază de un spațiu anexă, cu acces separat, ideal pentru un birou, garsonieră, atelier sau zonă de hobby. Terenul total are o suprafață de aproximativ 300 mp, din care în jur de 200 mp rămân liberi pentru amenajări exterioare – curte verde, grădină, loc de joacă sau parcare. Proprietatea se predă la cheie, în vara anului 2026, cu finisaje moderne și atenție la detalii, astfel încât viitorii proprietari să se poată bucura de confort deplin încă din prima zi.
- Casa va fi livrată complet finisată, cu pardoseli din parchet în camerele de locuit și gresie, faianță, obiecte sanitare în băi, inclusiv duș încorporabil, baterii, lavoar și vas WC. Toate ușile interioare vor fi montate, iar instalațiile electrice vor fi complet echipate cu prize, întrerupătoare și corpuri de iluminat în dormitoare, living și baie. Confortul termic este asigurat prin încălzire în pardoseală alimentată de centrală termică proprie, iar casa este racordată la toate utilitățile: apă, gaz și curent electric. De asemenea, proprietatea va avea gard complet montat, oferind intimitate și delimitare clară a terenului.
Această locuință oferă echilibrul perfect între estetică, funcționalitate și spațiu util, fiind o alegere excelentă pentru cei care caută o casă completă și modernă.
Pentru mai multe detalii sunati agentul si precizati la telefon ca ati vazut oferta cu ID : P17420

ID: P17420 Sibiu, Broscarie
39
139.900€
Casa la cheie pe un singur nivel 4 camere + 300mp teren Bavaria Stadt
Camere
4
Suprafata utila
83 mp
Bai
2
Caracteristici
- ID:P17420
- Nr. camere:4
- Nr. dormitoare:3
- S. utila:83.00 mp
- S. terase:26.00 mp
- S. teren:300.00 mp
- Nr. bucatarii:1
- Nr. bai:2
- Nr. parcari:1
Descriere
Specificatii
Curent
Apa
Canalizare
Gaz
Centrala proprie
Incalzire pardoseala
Localizare
Esti interesat de aceasta proprietate ?
Proprietati similare