Smart imobiliare vinde apartament cu 3 camere situat intr-un cartier nou de blocuri cu regim redus de inaltime.
Ansamblul va fi compus din 10 blocuri de 2 etaje plus etaj retras, fiecare bloc fiind dispus cu parcare subterana si lift.
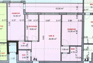
Apartamentul este situat la etajul 1 si dispune de o suprafata utila de 72,35mp plus 1 balcon de aproximativ 13mp, fiind compus din living open space cu bucatarie, dormitor, 2 dormitoare si 2 bai.
Predarea se face la stadiul de Cheie cu centrala proprie, incalzire cu calorifere, geamuri tripan, parchet, gresie, faianta, prize, intrerupatoare, usi interioare si baile utilate.
Locurile de parcare nu sunt incluse in pret si exista posibilitatea achizitionarii unui loc suprateran sau subteran cu boxa de depozitare.
Ansamblul este situat in cartierul Veteranii de Razboi, fiind pozitionat in zona din spate la Prima Shopping City si va dispune de un parc de relaxare, spatii comerciale, spatii pentru gradinita/cresa.
Localizat într-o zonă de case, în apropierea noului mall "Prima Shopping Center Sibiu" și a autostrăzii, "Cartierul Florilor" oferă acces rapid și facil către toate punctele de interes din oraș. De asemenea, datorită distanței sale scurte de doar 10 minute de centrul orașului, acest ansamblu rezidențial este ideal atât pentru tineri, cât și pentru familii.
Pretul afisat nu contine cota de TVA de 21%
Pentru detalii suplimentare, precizati ca ati vazut anuntul cu ID: P15632

ID: P15632 Sibiu, Veterani
9
98.900€ + TVA
115.800€ + TVA
Apartament 3 camere 72mp, bloc nou , etaj 1, zona Veterani de Razboi
Camere
3
Suprafata utila
72.35 mp
Etaj
Etaj 1
Bai
2
An constructie
2024
Caracteristici
- ID:P15632
- Nr. camere:3
- Nr. dormitoare:1
- S. utila:72.35 mp
- S. balcoane:9.65 mp
- S. construita:85.00 mp
- Comp.:Decomandat
- Confort:1
- Etaj:Etaj 1
- Nr. bucatarii:1
- Nr. bai:2
- Nr. balcoane:1
- An constructie:2024
- Structura:Caramida
- Tip imobil:Bloc
- Regim inaltime:P+2
- Orientare:Sud
Descriere
Specificatii
Curent
Apa
Canalizare
Gaz
Centrala proprie
Incalzire pardoseala
Izolatie Exterior
Ferestre Termopan
Localizare
Esti interesat de aceasta proprietate ?
Proprietati similare