Smart imobiliare vinde apartament cu 3 camere situat intr-o zona linistita, in cartierul DaVinci de la intrarea in Cristian.
Apartamentul este situat la parterul unui bloc de 2 etaje, dispune de o suprafata utila de 62mp plus o curte proprie cu suprafata de 50mp.
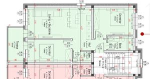
Imobilul dispune de living open space cu bucatarie, 2 dormitoare, hol si 2 bai.
Predarea se face la stadiul de CHEIE, cu pereti si tavane finisate cu vopsea lavabila culoare alb,pardoseala la nivel de gresie si pereti bai la nivel de faianta, ferestre si usa de balcon cu tamplarie PVC Salamander 7 camere si 3 foi de sticla;, usa metalica la intrare in apartament si usi interior, instalatie termica cu sistem de incalzire in pardoseala cu Pompa de Caldura Aer - Apa, instalatie sanitara cu obiecte sanitare baie, instalatie electrica cu panou dotat cu sigurante, prize si intrerupatoare, termoizolatie pereti exteriori cu polistiren expandat de 20 cm si tencuiala decorativa.
Fiecare apartament dispune de un loc de parcare amenajat cu pavaj, inclus in pret.
Predarea apartamentelor se va face incepand cu luna martie 2026.
Pretul afisat este pentru un avans de 90% si nu contine cota de TVA.
Pentru detalii suplimentare si stabilirea unei vizionari, precizati ca ati vazut anuntul cu ID: P17170

ID: P17170 Sibiu, Turnisor
7
110.000€ + TVA
Apartament 3 camere 62mp plus curte 50mp cartier Davinci Cristian
Camere
3
Suprafata utila
62 mp
Etaj
Parter
Bai
2
Parcari
1
An constructie
2025
Caracteristici
- ID:P17170
- Nr. camere:3
- Nr. dormitoare:2
- S. utila:62.00 mp
- S. construita:75.00 mp
- Comp.:Decomandat
- Confort:1
- Etaj:Parter
- Nr. bucatarii:1
- Nr. bai:2
- Nr. balcoane:1
- Nr. parcari:1
- An constructie:2025
- Structura:Caramida
- Tip imobil:Bloc
- Regim inaltime:P+2+M
Descriere
Specificatii
Curent
Apa
Canalizare
Centrala proprie
Localizare
Esti interesat de aceasta proprietate ?
Proprietati similare