
ID: P16442 Brasov, Tractorul
9
189.500€
Apartament 3 camere,spatios 104 mp Tractorul
Camere
3
Suprafata utila
104 mp
Etaj
Mansarda
Bai
2
Caracteristici
- ID:P16442
- Nr. camere:3
- Nr. dormitoare:2
- S. utila:104.00 mp
- S. construita:120.00 mp
- Comp.:Decomandat
- Confort:1
- Etaj:Mansarda
- Nr. bucatarii:1
- Nr. bai:2
Descriere
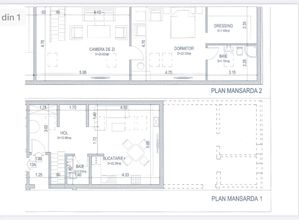
Smart Imobiliare va ofera spre vanzare apartament spatios de 104 mp utili, impartit pe doua niveluri la mansarda. Primul nivel are hol , baie de servici living cu bucătărie și balcon.Etajul are o camera de zi, dormitor matrimonial cu baie și dressing .Apartamentul dispune de loc de parcare. Se afla intr-o zona cu multe facilitati; supermarket, centru comercial, scoala generala,liceu,gradinita si mijloace de transport in comun. Pentru mai multe detalii,va rugam contactati agentul si specificati id-ul anuntului:P16442
Specificatii
Curent
Apa
Canalizare
Gaz
Centrala proprie
Complet mobilat
Localizare
Esti interesat de aceasta proprietate ?
Proprietati similare