Smart imobiliare va propune spre vanzare apartament situat pe Calea Cisnadiei in apropiere de Mandra.
Imobilul este situat la etajul 3 al unui bloc dispus cu lift, fiind dispus pe 2 niveluri.
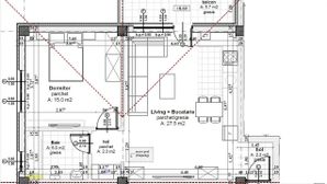
Apartamentul are o suprafata utila de 77.9 mp si este compusa astfel: living cu bucatarie open space, dormitor, hol, si baie la primul nivel cu o suprafata utila de 52 mp, iar la al doilea nivel avem o suprafata de 25.9 mp si este compus din hol, dormitor si baie.
Imobilul dispune si de un balcon de 5.70 mp.
Predarea se face la stadiul de Cheie, cu centrala proprie si incalzire in calorifere, usa la intrare, geamuri din tamplarie PVC, baile utilate, parchet, gresie, faianta, usi interioare, balcon finisat, scara interioara, loc de parcare inclus.
Exista posibilitatea de rate la dezvoltator, peroada si rata se stabilesc in functie de avans.
Pentru mai multe detalii si stabilirea unei vizionari, precizati ca ati vazut anuntul cu ID: P12861 .

ID: P12861 Sibiu, Calea Cisnadiei - Arhitectilor
8
133.000€
Apartament 3 camere 78 mp Calea Cisnadiei
Camere
3
Suprafata utila
78 mp
Etaj
Etaj 3
Bai
2
Parcari
1
An constructie
2024
Caracteristici
- ID:P12861
- Nr. camere:3
- Nr. dormitoare:2
- S. utila:78.00 mp
- S. balcoane:6.00 mp
- S. construita:90.00 mp
- Comp.:Semidecomandat
- Etaj:Etaj 3
- Nr. bucatarii:1
- Nr. bai:2
- Nr. balcoane:1
- Nr. parcari:1
- An constructie:2024
- Structura:Caramida
- Tip imobil:Bloc
- Regim inaltime:P+3+M
Descriere
Specificatii
Curent
Apa
Canalizare
Gaz
Centrala proprie
Calorifere
Izolatie Exterior
Vopsea lavabila
Ferestre PVC
Usa intrare Metal
Lift
Localizare
Esti interesat de aceasta proprietate ?
Proprietati similare