Smart imobiliare vinde apartamente noi, din cadrul unui proiect premium in zona centrala a orasului.
Imobilul va dispune de o curte comuna amenajata cu zone de relaxare, un spatiu comun amenajat, incalzire cu pompe de caldura si incalzire/racire in pardoseala.
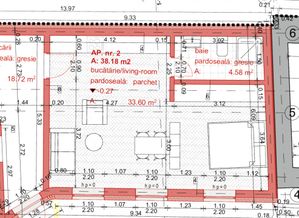
Cladirea va dispune de 11 apartamente, cu suprafete incepand de la 38 mp si pana la 100mp.
Predarea apartamentelor se face la stadiul de semifinisat, dar se pot finisa la cheie, in functie de preferintele clientului.
Pretul afisat este pentru un apartament cu 2 camere cu suprafata de 48mp, situata la etajul 1 si nu include cota TVA.
Predarea se va face incepand cu decembrie 2025.
Pentru detalii suplimentare, precizati ca ati vazut anuntul cu ID: P16151

ID: P16151 Sibiu, Orasul de Jos
6
135.000€ + TVA
Apartamente premium Orasul de Jos
Camere
2
Suprafata utila
47.53 mp
Etaj
Etaj 1
Bai
1
An constructie
2025
Caracteristici
- ID:P16151
- Nr. camere:2
- Nr. dormitoare:1
- S. utila:47.53 mp
- S. construita:60.00 mp
- Comp.:Semidecomandat
- Confort:1
- Etaj:Etaj 1
- Nr. bucatarii:1
- Nr. bai:1
- An constructie:2025
- Structura:Caramida
- Tip imobil:Casa/Vila
- Regim inaltime:P+1+M
Descriere
Specificatii
Curent
Apa
Canalizare
Incalzire pardoseala
Localizare
Esti interesat de aceasta proprietate ?
Proprietati similare